Добро пожаловать на http://vipplan.ru

Випплан Комсомольск-на-Амуре - это тысячи проектов домов в нашем каталоге!

Вы всегда сможете найти для себя проект дома вашей мечты! Даже если этого не случилось, мы готовы в любую минуту предложить проект индивидуального дома.

Забыли пароль?
Вы еще не регистрировались?

Перейдите по ссылке ниже на страницу регистрации.

Регистрация...

Внимание!!!

В проектную документацию могут быть внесены изменения любой сложности, в соответствии в Вашими пожеланиями!

Полезные статьи

Выбор участка для строительства дома

Если вы решили приобрести участок земли и построить на нем дом или дачу. То данная статья специально для вас. А так же мы поможем вам в выборе проекта для выбранного вами участка....

Закладка фундамента дома

Закладка фундамента является одним из первых и самых главных этапов строительства любого дома. Все здание опирается именно на эту часть конструкции. Поэтому главная функция фундамента заключается в том, чтобы нести на себе весь вес несущих стен и кровли, а значит предотвращать появление перекоса стен, проседание сооружения, что неизбежно приводит к образованию трещин в стенах здания и в фундаменте....

Проекты домов и коттеджей > Каталог проектов домов > Двухэтажный дом, гаражом на 2 машины, террасой и балконом Vg2450

Двухэтажный дом, гаражом на 2 машины, террасой и балконом Vg2450

Двухэтажный дом, гаражом на 2 машины, террасой и балконом
Зарегистрируйтесь

Проект № Vg2450


Техническое описание
Общая площадь: 239.32 м2
Жилая площадь: 131.38 м2
Высота здания: 9.02 м
Размеры дома: 16.52м×9.72м
Кол-во комнат: 6
Цокольный этаж: нет
Гараж: нет
Мансарда: нет

Kонструкция
Фундамент: монолитная ж/б плита
Перекрытия: пол по монолитной плите, монолитные ж/б плиты
Материал стен: Бетонные блоки

Архитектурный раздел
Конструктивный раздел
АР+КР - 64 000 (Со скидкой 20%)
Модель проекта индивидуального двухэтажного жилого дома с с размерами здания 16,52х9,72 м. Наружная отделка здания – штукатурка. Фундамент – монолитная ж/б плита. Наружные стены – керамзитобетонный блок, штукатурка. Внутренние стены – керамзитобетонный блок. Перегородки - кирпичные. Пол 1 этажа - пол по монолитной плите. Перекрытие второго этажа и чердачное - монолитные ж/б плиты. Крыша многоскатная. Кровля – металлочерепица. Окна — металлопластиковые.
Генплан застройки участка / Паспорт проекта 7000 руб / 10000 руб
Инженерный раздел (полный) 119500 руб
Смета на строительство 59750 руб
Теплотехнический расчет материалов стен Бесплатно
Стоимость проекта со незначительнми изменениями 74000 руб
Стоимость проекта со средними изменениями* 92000 руб
Стоимость проекта со значительными изменениями** 96700 руб

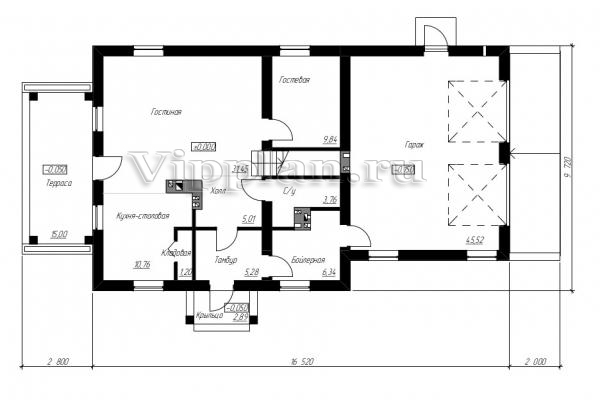
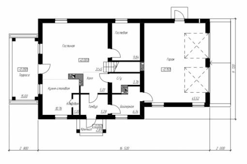
План первого этажа


Тамбур — 5,28 м2
Холл — 5,01 м2
Гостиная — 31,45 м2
Кухня — 10,76 м2
Кладовая — 1,2 м2
Гостевая — 9,84 м2
С/у - 3,76 м2
Бойлерная — 6,34 м2
Гараж — 45,52 м2

Двухэтажный дом, гаражом на 2 машины, террасой и балконом

Двухэтажный дом, гаражом на 2 машины, террасой и балконом

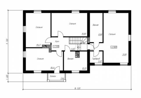
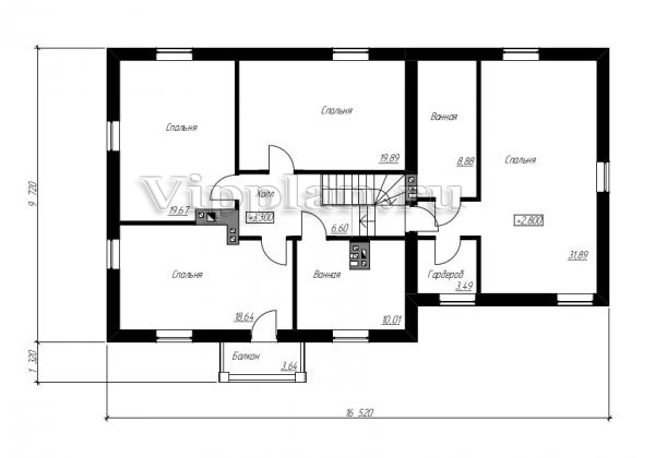
План второго этажа


Холл — 6,6 м2
Спальня — 19,89 м2
Спальня — 19,67 м2
Спальня — 18,64 м2
Ванная — 10,01 м2
Ванная — 8,88 м2
Гардероб — 3,49 м2
Спальня — 31,89 м2
Двухэтажный дом, гаражом на 2 машины, террасой и балконом Двухэтажный дом, гаражом на 2 машины, террасой и балконом Двухэтажный дом, гаражом на 2 машины, террасой и балконом Двухэтажный дом, гаражом на 2 машины, террасой и балконом

Модификации проектов

Внесение изменений и привязка к участку строительства

В любой из проектов от компании VIPplan - Комсомольск-на-Амуре по вашему желанию могут быть внесены изменения в материалы стен, материалы наружной отделки дома, а также будет произведена адаптация проекта под конкретный регион строительства (с учетом грунтов региона, геологических особенностей вашего участка и местных климатических условий) - БЕСПЛАТНО !!! (кроме проектов со скидкой и проектов наших партнеров).

Любой из проектов, размещенных на сайте komsomolsk-na-amure.vipplan.ru мы можем выполнить из требуемых вам строительных материалов: ячеистый бетон (газобетон, пеноблок), керамоблок, кирпич, шлакоблок, бетонный блок, дерево (брус, клееный брус), каркасная технология (деревянный каркас, металлокаркас (ЛСТК)).

Фасад дома и его наружную отделку так же возможно выполнить с применением различных облицовочных материалов: структурной штукатурки, (с утеплителем и без), сайдингом (пластиковый или металлосайдинг), фиброплитами, кирпича.

 
6 Избранные
проекты

Доставка проектов по России: Москва (Московская область), Санкт-Петербург (Ленинградская область), Краснодар, Ростов-на-Дону, Ставрополь, Сочи, Волгоград, Новосибирск, Белгород, Брянск, Воронеж, Саратов, Хабаровск, Астрахань, Нальчик, Владикавказ, Екатеринбург, Тюмень, Самара, Нижний Новгород, Казань, Пермь, Уфа, Челябинск, Красноярск, Ханты-Мансийск, Иркутск, Курган, Оренбург, Омск, Томск, Барнаул, Новокузнецк, Кемерово, Абакан, Чита, Якутск, Южно-Сахалинск, Петропавловск-Камчатский и страны ближнего зарубежья: Белоруссия, Украина, Казахстан