Добро пожаловать на http://vipplan.ru

Випплан Комсомольск-на-Амуре - это тысячи проектов домов в нашем каталоге!

Вы всегда сможете найти для себя проект дома вашей мечты! Даже если этого не случилось, мы готовы в любую минуту предложить проект индивидуального дома.

Забыли пароль?
Вы еще не регистрировались?

Перейдите по ссылке ниже на страницу регистрации.

Регистрация...

Внимание!!!

В проектную документацию могут быть внесены изменения любой сложности, в соответствии в Вашими пожеланиями!

Полезные статьи

Вентиляция в подвале дома

Без подвала или цокольного этажа в частном доме, в наше время, не обойтись. Это полезное для дома помещение должно быть хорошо вентилируемым. В доме с подвалом должна быть хорошая циркуляция воздуха, для сохранения находящихся в нем продуктов. Отсутствие вентиляции  может привести к образованию плесени и сырости не только в подвале, но и во всем доме....

Виды бассейнов

В наше время, строительство бассейна на территории своего участка, не такая уж и роскошь. Выбор видов и стилей бассейна, на сегодняшний день, очень большой....

Проекты домов и коттеджей > Каталог проектов домов > Двухэтажный дом с гаражом Vg1028

Двухэтажный дом с гаражом Vg1028

Двухэтажный дом с гаражом
Зарегистрируйтесь

Проект № Vg1028


Техническое описание
Общая площадь: 195.43 м2
Жилая площадь: 108.35 м2
Высота здания: 8.75 м
Размеры дома: 12.14м×13.54м
Кол-во комнат: 5
Цокольный этаж: нет
Гараж: нет
Мансарда: нет

Kонструкция
Фундамент: Монолитная ж/б плита
Перекрытия: Деревянные балки
Материал стен: Газобетон

Архитектурный раздел
Конструктивный раздел
АР+КР - 60 000 (Со скидкой 20%)
Проект индивидуального двухэтажного жилого дома с размерами здания 12,14 x 13,54 м. Наружная отделка здания - фасадная штукатурка, частично рустовка. Цоколь - отделка камнем. Кровля - битумная черепица. Отделка вентканалов - штукатурка. Фундамент - монолитная ж/б плита (под всей площадью дома). Наружные стены здания: газобетонные блоки и отделкой фасадной штукатуркой. Внутренние стены и перегородки - газобетонные блоки. Пол 1 этажа - пол по плите. Межэтажное перекрытие - сборные ж/б плиты перекрытия. Чердачное перекрытие - по деревянным балкам с использованием теплошумоизоляционных материалов типа "URSA" в межбалочном пространстве. Вентканалы - из полнотелого кирпича. Из Кухни, С/у на 1 этаже и С/у на 2 этаже на кровлю трубы выводить в вентиляционную трубу. Установить вентиляционную трубу необходимо через проходные элементы. При помощи проходных элементов изделия герметично монтируются на кровле. Проходной элемент подбирается по типу кровельного материала и диаметру выводимого на кровлю элемента. Перемычки - монолитные железобетонные и сварные из профиля проката. Крыша - многоскатная. Окна - металлопластиковые, выполнить по индивидуальному заказу. Лестница - монолитная, ж/б, выполнить по индивидуальному заказу.
Генплан застройки участка / Паспорт проекта 7000 руб / 10000 руб
Инженерный раздел (полный) 97500 руб
Смета на строительство 48750 руб
Теплотехнический расчет материалов стен Бесплатно
Стоимость проекта со незначительнми изменениями 70100 руб
Стоимость проекта со средними изменениями* 84800 руб
Стоимость проекта со значительными изменениями** 88700 руб

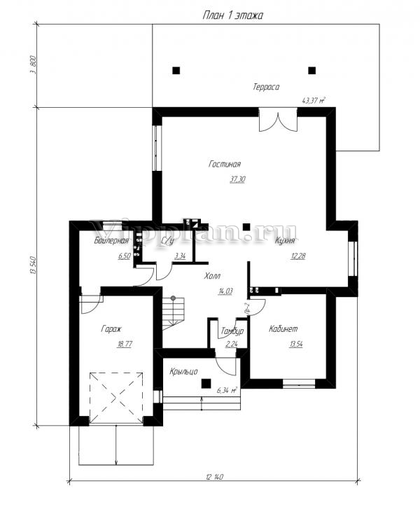
План первого этажа


Тамбур - 2,24 м2
Холл - 14,03 м2
Гостиная - 37,30 м2
Кухня - 12,28 м2
С/у - 3,34 м2
Бойлерная — 6,50
Гараж - 18,77 м2
Кабинет - 13,54 м2

Двухэтажный дом с гаражом

Двухэтажный дом с гаражом

План второго этажа


Холл - 10,64 м2
Спальня - 18,01 м2
Спальня - 18,18 м2
С/у - 9,52 м2
Спальня - 21,32 м2
Гардероб - 5,26 м2
Двухэтажный дом с гаражом Двухэтажный дом с гаражом Двухэтажный дом с гаражом Двухэтажный дом с гаражом

Модификации проектов

Внесение изменений и привязка к участку строительства

В любой из проектов от компании VIPplan - Комсомольск-на-Амуре по вашему желанию могут быть внесены изменения в материалы стен, материалы наружной отделки дома, а также будет произведена адаптация проекта под конкретный регион строительства (с учетом грунтов региона, геологических особенностей вашего участка и местных климатических условий) - БЕСПЛАТНО !!! (кроме проектов со скидкой и проектов наших партнеров).

Любой из проектов, размещенных на сайте komsomolsk-na-amure.vipplan.ru мы можем выполнить из требуемых вам строительных материалов: ячеистый бетон (газобетон, пеноблок), керамоблок, кирпич, шлакоблок, бетонный блок, дерево (брус, клееный брус), каркасная технология (деревянный каркас, металлокаркас (ЛСТК)).

Фасад дома и его наружную отделку так же возможно выполнить с применением различных облицовочных материалов: структурной штукатурки, (с утеплителем и без), сайдингом (пластиковый или металлосайдинг), фиброплитами, кирпича.

 
6 Избранные
проекты

Доставка проектов по России: Москва (Московская область), Санкт-Петербург (Ленинградская область), Краснодар, Ростов-на-Дону, Ставрополь, Сочи, Волгоград, Новосибирск, Белгород, Брянск, Воронеж, Саратов, Хабаровск, Астрахань, Нальчик, Владикавказ, Екатеринбург, Тюмень, Самара, Нижний Новгород, Казань, Пермь, Уфа, Челябинск, Красноярск, Ханты-Мансийск, Иркутск, Курган, Оренбург, Омск, Томск, Барнаул, Новокузнецк, Кемерово, Абакан, Чита, Якутск, Южно-Сахалинск, Петропавловск-Камчатский и страны ближнего зарубежья: Белоруссия, Украина, Казахстан